
賃料 |
4万円 |
共益費/管理費 |
- |
---|---|---|---|
敷金 |
1ヶ月 |
礼金 |
- |
保証金 |
- |
敷引_償却 |
- |
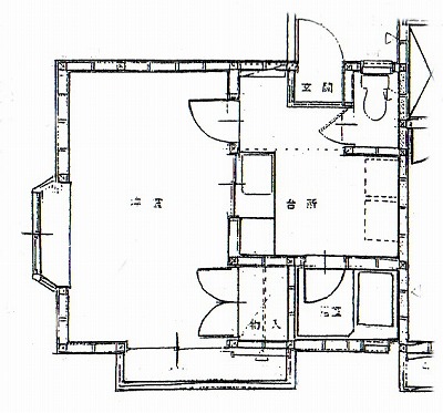
間取り |
1K |
築年月 |
1994/03(築31年) |
面積 |
24.84m²(7.51坪) |
階建 |
1階/2階建 |
所在地 |
三島市文教町2丁目 |
||
周辺環境 |
JR三島駅まで 徒歩7分 570m |
お電話でのお問い合わせ
物件番号:3025
お電話でお問い合わせの際は、物件番号をお伝えください。
055-981-8380
営業時間:9:30 AM - 6:30 PM
定休日:木曜日
ポイント
POINT
☆インターネット無料♪☆
☆学生限定♪☆
☆日大文教町校舎まで340m、徒歩4分♪☆
☆エアコン・冷蔵庫・洗濯機・ガスレンジ・照明器具付き♪☆
☆バス・トイレ別々♪☆
☆仲介料無し♪☆
☆全8戸、すべて角部屋♪☆
☆学生限定♪☆
☆日大文教町校舎まで340m、徒歩4分♪☆
☆エアコン・冷蔵庫・洗濯機・ガスレンジ・照明器具付き♪☆
☆バス・トイレ別々♪☆
☆仲介料無し♪☆
☆全8戸、すべて角部屋♪☆
物件詳細DETAIL
建物構造 |
木造 |
向き |
南 |
---|---|---|---|
現況 |
居住中 |
入居時期 |
2025/10 中旬 |
間取詳細 |
洋7.5、K2 |
総戸数 |
8戸 |
保険等 |
要 18,000円 2年 |
保証会社 |
可 |
契約期間 |
2年 |
更新料 |
更新事務手数料¥11,000 |
取引態様 |
仲介 |
仲介手数料 |
- |
駐車場 |
無 |
学区 |
|
諸費用 |
入居費用(概算) |
98,000円 |
|
特色/設備 |
洋7.5、K2、インターネット無料、学生限定、仲介料無し、家電付き(冷蔵庫、洗濯機)、1階、角部屋、大学生限定、バストイレ別、ガスキッチン、エアコン、洋室、フローリング、室内洗濯機置場、浴室シャワー、クローゼット、収納、バルコニー、下駄箱、賃貸保証システム、住宅保険要加入 |
||
情報更新日 |
2025年10月16日 |
次回更新予定日 |
2025年10月17日 |
※掲載されている物件データが現状と異なる場合は現状を優先します。
周辺地図MAP

アップル不動産COMPANY
所在地 |
静岡県三島市一番町10番7号 |
||
---|---|---|---|
免許番号 |
静岡県知事免許(5)第12310号 |
||
会員 |
(公社)静岡県宅地建物取引業協会
(公社)全国宅地建物取引業協会連合会
(公社)全国宅地建物取引業保証協会
|
||
電話番号 |
055-981-8380 |
FAX番号 |
055-981-8390 |
営業時間 |
9:30 AM - 6:30 PM |
定休日 |
木曜日 |